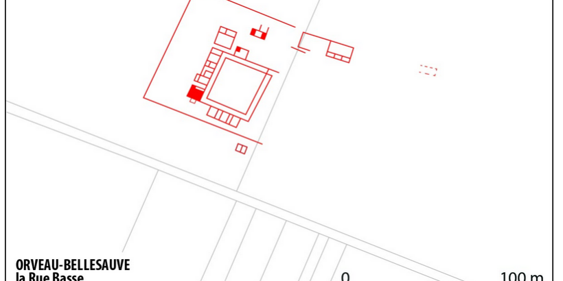
Parmi les nombreuses fermes gallo-romaines situee sur le territoire de Nangeville et des environs, identifiees grace a la photographie aerienne, plusieurs sont d’une taille tres importante (dites de “rang 1) avec des batiments se deployant sur 100 metres ou plus.
Les plans ci-dessous (extraits du site de l’AERBA) presentent les plus importantes fermes-villas :
- Orveau-Bellesauve : villa “La rue Basse”, tout pres du territoire de Nangeville et de celui d’Oinville
- Blandy : villa vers Audeville
- Brouy : villa “La Croix de Fenneville”
- Champmotteux : villa “Le Chemin de Boigneville”, egalement tout pres de Nangeville








